Hello - I’m Andy, long-time lurker, first time poster.
I’ve been planning a small drum room for a few years as part of a larger home-renovation.
Construction starts in a couple of weeks and will run for a year. Still time to make changes & all feedback welcome! I’ve really appreciated trawling this and John Sayers' forum over the years and learning from other builds.
Scope
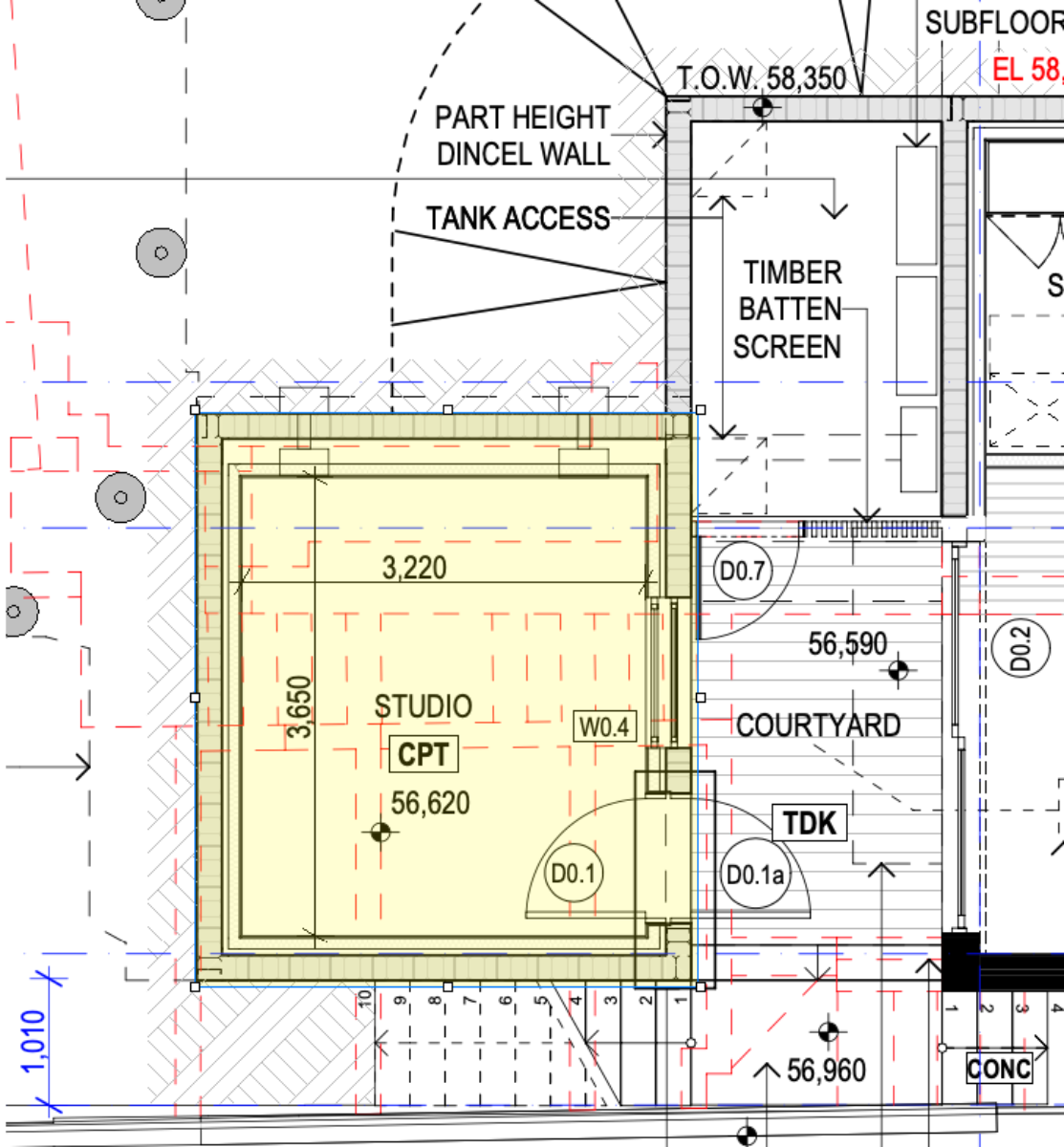
This is a small (12sqm / 126sqft) new-build drum practise room - so focus is on soundproofing rather than room acoustics. Internal dimensions are 3.65m wide 3.2m deep x 2.4m high.
Hoping for 55dB+ transmission loss - but I can vary what I’m playing (electronic, acoustic or hybrid kit) and time of day to work with the end result.
Ideally the room will work for e-drums at night and acoustic during the day without disturbing people nearby.
The room is on lower-ground level & separated from main house by 2 metres and is 7 and 9 metres from indoor space of two nearest neighbours.
Site
Here's what the site looks like today:
The drum room (shown dotted yellow) will be mostly hidden under new decking at rear of the house.
Construction
Standard room within a room.
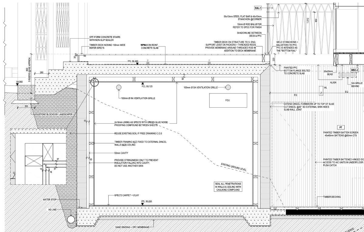
The room is partially built into soil on two sides, with a staircase on south side and a door and window (facing main house) on east side. Ground floor decking sits above the ceiling along with a new garden bed.
Floor is monolithic slab on grade. Outer walls are rendered 200mm Dincel (concrete with plastic formwork). Ceiling is poured 200mm concrete to match. This thickness of concrete is already required for the retaining walls.
The decoupled inner walls and ceiling are 90mm stud frames fillled with 88mm Bradford SoundScreen 2.5 (40kg/m3), then two layers of 16mm Fiberock Aqua-Tough high density drywall with a Green Glue layer. The 50mm gap between framing and concrete gives a total cavity size of 140mm.
Doors
I’m cheating and ordering a pair of steel W-50 Noise-Lock Acoustic Doors from IAC - one for each leaf. These doors will be installed by IAC and include the full door frame, seals and closers. Example cross-section below:
There are other models if anyone thinks I’ve under-specified :
Window
We’ll follow Stuart’s guide as closely as possible. Planning to use 26mm acoustic triple-laminated glass for each 1200x1200mm pane.
Ventilation
I’ll build 4 silencer boxes using the Gregor recipe. Using 25mm marine-ply rather than MDF (for better water resistance) with proper duct-liner.
Internal dimensions are based on doubling the area of a round 100mm duct (so halving the air flow speed in-silencer). Each box is 750 x 400 x 215 mm and should weigh 13kg.
The northern wall cavity is wider (290mm) to accommodate the two internal boxes and the two outer boxes are attached to the external concrete wall.
I’ve not solved how to connect the inner and outer boxes to avoid flanking yet. One idea is to leave a gap between two PVC pipes and wrap in dense rubber.
I like the look of the AC Infinity Cloudline T4 fan - but as this is mostly used for hydroponics it may not cope with the static pressure of the silencers! Still searching for the perfect quiet fan with variable speed control.
The fan will supply air to the grill nearest the window and provide positive pressure - with the exhaust air exiting on the same wall at rear of the room, away from the AC unit.
Supply air inlet is high on the courtyard wall, and exhaust outlet is under decking.
Running the numbers I end up with about 350 feet/second at the (100mm) grilles - even with a slow fan - so also wondering if larger ducting (and larger silencer?) are needed (150mm/ 6 inches rather than 100mm / 4 inches)
Very rough sketch - only one of two pairs shown, external silencer box in red, internal in blue:
Air Conditioning
A small 2Kw Daikin mini-split will be installed directly below the supply air vent for maximum circulation. (The main house will have separate ducted AC.)
Electrical
All internal wiring will use ECD surface-mount ducting carrying power and 3 CAT6 cables for data.
Holes in both walls will be as small as possible and packed with insulation and putty.
Interior
Will start with a laminate wood floor - and add rugs, sound panels and traps later as needed.
Transmission Loss
If I’ve put the right numbers into Gregwor & audiomutt's MSM Transmission Loss Calculator they should look a bit like this:
The windows are the weakest link and the doors are specified to be slightly better than the windows.
I’ve included both manufacturer’s numbers for the doors (dashed) and also from going by the weight of them (solid line).
Questions
Have I missed anything important?
Are the walls, doors and windows well matched for transmission loss?
Just realised (reading another post) that there are no backer rods specified in the drywall construction - do we need these?
My silencer boxes are missing a bunch of detail (grilles and connectors, how to attach to wall and to ducting, vent types etc) - any tips here appreciated.
Should I put anything special as an underlay to the laminate floor? (on top of the concrete slab)
I’m working with awesome architects and professional builders - but they don’t have studio experience. I’m writing a guide to caulking, sealing and offsetting penetrations (based on tips from the forums) - anything else I should add that a contractor might miss?
Best way to connect inner and outer silencer boxes to avoid coupling / flanking noise?
Source for duct-liner in Australia ? Would duct board work instead?
How to run mini-split piping through the two walls?
Do we need to caulk any part of the concrete wall / roof?
--
thanks again for all the help you all have already given me with your posts!
Andy
Hidden Drum Room - Australia
Hidden Drum Room - Australia
Greetings Andy,
Welcome to the forum.
Nicely detailed plan. I will let others with more studio-building experience chime in on that. I will add my two cents below:
Most flooring manufacturers have very specific instructions for underlayment, especially over concrete (for moisture concerns, usually). Methinks following those guidelines will be most important, as you certainly don't want to have to redo the floor.
All the best,
Paul
Welcome to the forum.
Nicely detailed plan. I will let others with more studio-building experience chime in on that. I will add my two cents below:
Should I put anything special as an underlay to the laminate floor? (on top of the concrete slab)
Most flooring manufacturers have very specific instructions for underlayment, especially over concrete (for moisture concerns, usually). Methinks following those guidelines will be most important, as you certainly don't want to have to redo the floor.
All the best,
Paul
Hidden Drum Room - Australia
have you measured the existing isolation of the space already?
also - you can put the silencers on the inside of the inner wall and horizontal on the ceiling to decrease the air gap on that wall. make it part of the (future) absorption soffit you'll add to improve the acoustics
also - you can put the silencers on the inside of the inner wall and horizontal on the ceiling to decrease the air gap on that wall. make it part of the (future) absorption soffit you'll add to improve the acoustics
Hidden Drum Room - Australia
have you measured the existing isolation of the space already?
this is a new build (and I'm currently only playing e-drums) so isolation assumtions are based on similar builds shared on forums
you can put the silencers on the inside of the inner wall and horizontal on the ceiling to decrease the air gap on that wall. make it part of the (future) absorption soffit you'll add to improve the acoustics
excellent idea, thanks - I'll see if we can work that in - that would improve the room ratios a bit too!
Hidden Drum Room - Australia
Exciting stuff!
Backer rod is hugely beneficial for drywall installation. In my experience, necessary for gaps that have holes behind them, and it will save you a fortune on caulk as in theory you'll only need half as much. There is a specific sequence for making proper corners, joins etc. with those materials. I think Rod Gervais' book has details on this.
The density per area of the walls of the each silencer should match the density per area of the leaf they are attached too. I suspect yours are a bit underweight in this regard. Worth checking again IMHO.
It all depends on the room size of course, and air flow requirements, but I found that moving from a system based on 100mm diameter ducting to 150mm diameter gave a huge reduction in system wide static pressure, and widened the range of fans that met requirements substantially.
Cheers,
Jennifer
Backer rod is hugely beneficial for drywall installation. In my experience, necessary for gaps that have holes behind them, and it will save you a fortune on caulk as in theory you'll only need half as much. There is a specific sequence for making proper corners, joins etc. with those materials. I think Rod Gervais' book has details on this.
The density per area of the walls of the each silencer should match the density per area of the leaf they are attached too. I suspect yours are a bit underweight in this regard. Worth checking again IMHO.
It all depends on the room size of course, and air flow requirements, but I found that moving from a system based on 100mm diameter ducting to 150mm diameter gave a huge reduction in system wide static pressure, and widened the range of fans that met requirements substantially.
Cheers,
Jennifer
Website: https://www.jenclarkmusic.com/
- Soundman2020
- Site Admin
- Posts: 905
- Joined: Thu, 2019-Sep-19, 22:58
- Location: Santiago, Chile
- Contact:
Hidden Drum Room - Australia
Hi Andy, and I'll add my (belated) welcome to that of others: Welcome to the forum!
I must say that your first post is rather impressive: You've clearly put a lot of thought and effort int your design, and that bodes very well for a good outcome. So I only have a few comments to add, to what others have already said:
Backer rod: Listen to Jennifer! Good advice there.
All in all, you seem to be on a good track here!
- Stuart -
I must say that your first post is rather impressive: You've clearly put a lot of thought and effort int your design, and that bodes very well for a good outcome. So I only have a few comments to add, to what others have already said:
That's a reasonable and achievable goal. However:Hoping for 55dB+ transmission loss
Well, I'd take that graph with a large pinch of salt! 70 dB of isolation at 125 Hz would be pretty darn amazing! Beyond amazing, it would be unbelievably incredible! And TL curves are pretty much never flat like that. Your goal of 55 dB is realistic: that graph is not.If I’ve put the right numbers into Gregwor & audiomutt's MSM Transmission Loss Calculator they should look a bit like this:
That, right there, is a really good thing that tells me your isolation goals are achievable. That's an excellent situation. With a bit of luck and careful HVAC design, you should be able to meet that goal, and perhaps exceed it.The room is partially built into soil on two sides, ... Floor is monolithic slab on grade. Outer walls are rendered 200mm Dincel (concrete with plastic formwork). Ceiling is poured 200mm concrete to match. This thickness of concrete is already required for the retaining walls
That ain't cheating! That's being smart! Those should do a good job of helping you achieve your goal.I’m cheating and ordering a pair of steel W-50 Noise-Lock Acoustic Doors from IAC - one for each leaf
For a full acoustic drum kit played hard, the D59 and D63 models would be a better bet of exceeding your goal, but are likely rather more costly than than the D50 you chose. The kick and floor tom (and the snare/rack toms, to a lesser extent) can put out considerable energy in the low end, so the extra mass of those doors would be useful. But even more important than the doors themselves, is the seals. Those seals need to be very good, to get you beyond your 55 dB goal. Make sure that the installers do an exceptional job with those seals! Test carefully after they say they are done, but before they leave the site... One simple trick here is to get a narrow strip of thin paper, trap it in the seals in various places around the door edge as you close the door, then tug on the end to see if you can pull it out easily, or if it doesn't want to budge. If it moves more when you test in some places than other places, then that's an indication of a potential issue. The force needed to move it should be about the same all over, and ideally you should NOT be able to pull it out without tearing it. If you can't pull it at all, anywhere you trap it, that's a good sign that the seals are well done.There are other models if anyone thinks I’ve under-specified :
All of that sounds to be on the low side, for 55dB + TL, especially considering drums. You might want to consider beefing that up somewhat.I’ll build 4 silencer boxes using the Gregor recipe. Using 25mm marine-ply rather than MDF (for better water resistance) with proper duct-liner. Internal dimensions are based on doubling the area of a round 100mm duct (so halving the air flow speed in-silencer). Each box is 750 x 400 x 215 mm and should weigh 13kg.
Flexduct is your friend here! Keep the runs short, keep the flexduct straight without sagging, and you'll be fine.I’ve not solved how to connect the inner and outer boxes to avoid flanking yet.
Put your fan on the FAR end of the duct (either inlet or exhaust), outside the studio. That way, a noisy fan isn't too much of an issue. It's still a good idea to look for a quiet fan, but the actual noise won't get into the studio if you place the fan(s) on the outer end(s) of the ducts.Still searching for the perfect quiet fan with variable speed control.
Standard underlay as recommend by the floor manufacturer is fine. They might also allow "acoustic" underlay, which isn't really necessary but might be nice. It's a bit thicker than the normal underlay, but the "acosutic" properties aren't really applicable to studios. Normal underlay is fine. As Paul mentioned, stick to what the manufacturer recommends. Don't experiment.Should I put anything special as an underlay to the laminate floor? (on top of the concrete slab)
Backer rod: Listen to Jennifer! Good advice there.
All in all, you seem to be on a good track here!
- Stuart -
Hidden Drum Room - Australia
couple more techniques - you can wrap the silencers with moisture resistant gwb to increase the mass. you can also use a larger flex duct to nest the inner flex duct for additional stability and virtually no increase in coupling. this keeps the smaller flex duct from potentially sagging over time.
-
gearjunk1e
- Full Member
- Posts: 112
- Joined: Sun, 2021-Mar-07, 19:19
- Location: Orange Australia
Hidden Drum Room - Australia
Hi Andy
Have you managed to find local suppliers in Sydney for duct liner and flexduct?
I'm out in Orange but get to Sydney from time to time
Andrew
Have you managed to find local suppliers in Sydney for duct liner and flexduct?
I'm out in Orange but get to Sydney from time to time
Andrew
Hidden Drum Room - Australia
thanks so much for checking in Andrew - I got lucky with a supplier in Smithfield who was able to supply a couple of sheets of foil-faced Bradford Supertel (and cut it up so I could get it home!).
Despite the rain - the concrete and framing are complete, and the core holes drilled in the right place. I've started building the baffles and these will go in just after the drywall in a month or two.
I've updated the design based on the great feedback on this thread (thank you all!) which I'll share in next post.
Backer-rod also got a whole lot less mysterious when I realised it was foam and not solid! The current plan includes 5m shims & 10mm open-cell backer rod - hope that is an ok combination
Despite the rain - the concrete and framing are complete, and the core holes drilled in the right place. I've started building the baffles and these will go in just after the drywall in a month or two.
I've updated the design based on the great feedback on this thread (thank you all!) which I'll share in next post.
Backer-rod also got a whole lot less mysterious when I realised it was foam and not solid! The current plan includes 5m shims & 10mm open-cell backer rod - hope that is an ok combination
Hidden Drum Room - Australia
andyymkm wrote:Source of the postThe current plan includes 5m shims & 10mm open-cell backer rod - hope that is an ok combination
For diameter of backer rod, the rule of thumb I've used is based on assuming the caulk is twice as dense as the plasterboard. Therefore you'll need at least half the the thickness of caulk. So if the plasterboard is 15mm, that would mean 8mm of caulk. This leaves 7mm for the backer rod. In this case I'd go for 6mm backer rod and leave gaps that will squeeze it slightly to keep it in place. The squeezing will give it an elliptical profile that will hopefully be ~7mm.
That's in an ideal world of course! Sometimes you may need a larger gap, or sometimes existing structures have larger gaps. So I have a stock of varying sizes of backer rod just in case.
Cheers!
Jennifer
Website: https://www.jenclarkmusic.com/
-
gearjunk1e
- Full Member
- Posts: 112
- Joined: Sun, 2021-Mar-07, 19:19
- Location: Orange Australia
Hidden Drum Room - Australia
Thanks Andy - I'll check that product outandyymkm wrote:thanks so much for checking in Andrew - I got lucky with a supplier in Smithfield who was able to supply a couple of sheets of foil-faced Bradford Supertel (and cut it up so I could get it home!).
Looking forward to the update
Andrew
Hidden Drum Room - Australia
I too bought all sizes of Backer Rod .... as it was one of the 'lightest' materials I had to purchase when doing our build.

Hidden Drum Room - Australia
basically backer rod 50% more than width of gap. positioned so three-way contact of caulk is roughly equal. so a 5mm gap would use 8mm backer rod and inserted so it leaves at least 5mm depth but probably 7mm on a 15mm depth (given the squashing of the rod elongates it slightly)
-
- Similar Topics
- Statistics
- Last post
-
-
Replies: 1
Views: 47908 -
by Starlight
View the latest post
Mon, 2024-Dec-16, 12:01
-
-
Insulation selection for inside out room
by norg » Fri, 2025-Feb-28, 14:10 » in RECORDING STUDIO ACOUSTICS AND TREATMENT -
Replies: 2
Views: 19936 -
by norg
View the latest post
Fri, 2025-Feb-28, 17:40
-
-
-
Garage to single room studio Attachment(s)
by tl_balk » Fri, 2025-Apr-25, 14:59 » in RECORDING STUDIO DESIGN -
Replies: 7
Views: 154948 -
by gullfo
View the latest post
Tue, 2025-May-06, 16:03
-
-
-
What is the best sounding room in the world for drums?
by Diegel » Fri, 2025-Feb-28, 13:48 » in RECORDING STUDIO DESIGN -
Replies: 2
Views: 21096 -
by Diegel
View the latest post
Fri, 2025-Feb-28, 18:02
-
Who is online
Users browsing this forum: No registered users and 4 guests