New build small size high isolation project
-
Purelythemusic
- Full Member
- Posts: 156
- Joined: Sat, 2019-Oct-12, 18:39
- Location: England - Bristol
Re: New build small size high isolation project
Hi Stuart,
Sorry forgot to say, yes the holes are not feasible to move...sorry! Bit ahead of ourselves!
I know somewhere local that we can get 3m lock mdf sheets but that’s still going to have a join. If we stagger the join, I was assuming they are at least 2 sheets thick and glued and pinned... or just glued and clamped?
Sorry forgot to say, yes the holes are not feasible to move...sorry! Bit ahead of ourselves!
I know somewhere local that we can get 3m lock mdf sheets but that’s still going to have a join. If we stagger the join, I was assuming they are at least 2 sheets thick and glued and pinned... or just glued and clamped?
- Success in music is being able to make music whatever your situation -
-
Purelythemusic
- Full Member
- Posts: 156
- Joined: Sat, 2019-Oct-12, 18:39
- Location: England - Bristol
Re: New build small size high isolation project
Ooo the plan for the next 2-3 weeks is Roof structure, floor finishing, then rendering the inside walls.
I’ll need the doors decided upon very soon too! I have the structural openings but the doors are quoted from a company but the isolation requirements are demanding out of proportion costs... Stuart if you can look at Luke’s email again I think higher isolation for the internal door and less for the external?
I’ll need the doors decided upon very soon too! I have the structural openings but the doors are quoted from a company but the isolation requirements are demanding out of proportion costs... Stuart if you can look at Luke’s email again I think higher isolation for the internal door and less for the external?
- Success in music is being able to make music whatever your situation -
- Soundman2020
- Site Admin
- Posts: 905
- Joined: Thu, 2019-Sep-19, 22:58
- Location: Santiago, Chile
- Contact:
Re: New build small size high isolation project
Weird! I didn't get that. I'll check my Spam folder. Could be something to do with the demonstrations here, and the crazy ISP I'm using right now... I'll try to figure it out...I sent them end of last week! Ah so sorry you haven’t received the email!
Anyway:
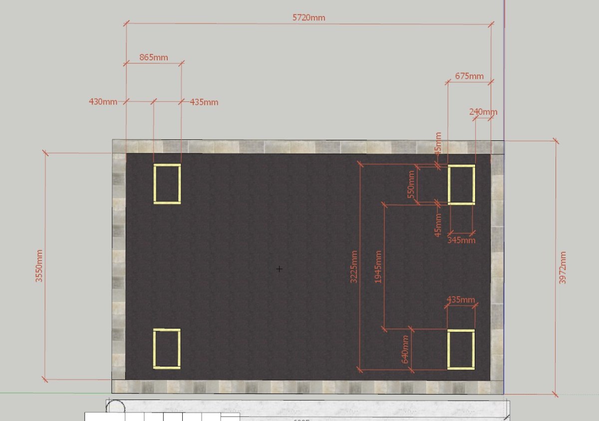
Like this?The outside of the holes measure 435 x 640mm
The free opening space is 345 x 550...
From the outside of one to the outside of the other it measures 3225.
I think I got that right, but just checking
I also need the distance between the rear edge of the hole and the rear wall face (measured INSIDE the room!).
Also: Are both ends of the room the same? In other words, the two holes for the supply silencer at the rear of the room are laid out identically to the two holes for the return silencer at the front of the room?
With that info, it will just take a couple of hours to update the silencer boxes, so you can start building them! Just an up-front warning: these things are going to be HEAVY! As in VERY heavy. I'm over-sizing them in every way, since you need such high isolation. You are going to beed to figure out a way of getting them up there, and located properly. It might be easier to just build them in place, on top of the inner-leaf ceiling slab, rather than trying to lift them. I'll give you an estimate of the weight after the design is finished, but the estimate right now is: "Damn, that's heavy!"
Definitely, but you don't need to make the top flush with the concrete. Leave it a little proud, by a few mm, if you want. Trying to plan it flush would probably damage your plane anyway. We'll use rubber pads under the silencer, on top of the wood and the concrete, to support the box. I'll give you the type of rubber and dimensions of those pads too: the idea is to acoustically float the silencer on top of the ceiling, so it is isolated and decoupled from the leaf itself, to maximize isolation.I wonder if it is better to leave the shutter in place, plane the top nice and flat, then use the shutter as part of the sleeve...
That's the general idea, yes, but we'll be using highly-flexible caulk, not green glue, for that. You'll build out the shutter a bit more to be nearly the same size as the sleeve, with just a couple of mm gap all around the edge (once again, to keep it all decoupled) then you'll put backer rod into the gap, and seal with the right type of caulk.... Lots of it! We'll need to build that up in several layers: some backer rod, pushed deep, some caulk (squirted deep), more backer rod, more caulk, etc. We need to get the mass in that gap as high as possible, and multiple seals. Caulk has reasonably high density, but we'll still need to use several layers to get enough mass in there. Your door and the HVAC system are the weak points in the isolation.the silencer could be green glued and fixed to the shuttering, then extend the sleeve inside the shutter into the room?
Right. Don't take it out!if we remove the shutter then we have a slightly tricky opening to seal...
System A seems better to me. The plywood adds very little mass, and doesn't do a lot to short-circuit the the PIR. I'm not too worried about that, to be honest. Yes, in theory, there's a third leaf there, but screwing through into the concrete just makes it point connections, not a solid connection, which doesn't act the same. If you have the famous Wyle report from way back in 1973 (you can find it here: viewtopic.php?f=9&t=4 ), you can see how point-connections affect isolation. Yes it is coupled, but the performance is maybe not what you'd expect...System A:
Block and beam (95mm concrete block), vapour membrane, pir insulation then concrete topping which I can liquid rubber finish.
System B:
Block and beam, concrete topping, vapour membrane, pir insulation, ply screwed through to the concrete, then liquid rubber roof.
mixed into the topping concrete, for extra protection.
Internally we'll be using 200mm round ducts to connect the boxes, so I'd suggest using the same size for the fresh air intake and stale air outlet. However, it could be possible to go smaller, depending on which way you want to go with the actual HVAC concept: I'd suggest using a ducted mini-split system, so we only need to supply smaller amounts of make-up air and recirculate most of the air. It's slightly more expensive initially, but the operating costs are lower in the long run. A ductless mini-split on the rear wall is cheaper initially, but less efficient and hence higher operating costs. There's another issue here that we need to talk about, that you you didn't consider in your original layout, but I'll send you an e-mail about that.My final thought of uncertainty is the sleeves through the outer wall... if they are anything other than 150mm round holes then I’ll need to lintel them (I realised only last night)...
Anyway, please confirm the dimensions for the silencers, so I can get that to you shortly!
- Stuart -
- Soundman2020
- Site Admin
- Posts: 905
- Joined: Thu, 2019-Sep-19, 22:58
- Location: Santiago, Chile
- Contact:
Re: New build small size high isolation project
Purelythemusic wrote:...sorry! Bit ahead of ourselves!
That should be fine. It looks like the longest piece will be about 2650mm, so you should be OK with anything bigger than that. Factory joins are OK, and yes, always stagger joints!I know somewhere local that we can get 3m lock mdf sheets but that’s still going to have a join. If we stagger the join, I was assuming they are at least 2 sheets thick and glued and pinned... or just glued and clamped?
Your box is going to be a "sandwich" (I'll send you the details later....) to increase the mass without making it too thick, so it won't be glued... but it will be screwed.
That's the maximum thickness you can get for that long MDF? Any chance you can get something thicker than 20mm?
OK, I'll check that out, and let you know.if you can look at Luke’s email again I think higher isolation for the internal door and less for the external?
- Stuart -
- Soundman2020
- Site Admin
- Posts: 905
- Joined: Thu, 2019-Sep-19, 22:58
- Location: Santiago, Chile
- Contact:
Re: New build small size high isolation project
Figured it out: G-mail thinks you are spam! I just found several e-mails from you in my Spam folder, so I'll take a look at those and get back to you on anything that still needs an answer.I sent them end of last week! Ah so sorry you haven’t received the email!
Sorry about that!
- Stuart -
-
Purelythemusic
- Full Member
- Posts: 156
- Joined: Sat, 2019-Oct-12, 18:39
- Location: England - Bristol
Re: New build small size high isolation project
Hi Stuart,
Thanks very much, spam in a can ey!
The back wall to opening is 240mm (closest we could get to get it in the back wall treatment)
Front wall to opening is 430... they are close to the edge of the room though so might fit in the soffic enclosures...
The image above is correct for location and sizes. I imagine the silencers may be about 130-150kg... we’ll find a way to get them there. I don’t think there’s going to be enough room up there to construct. I’m planning to have the mdf cut to size then we assemble on site.
I should think I can get 24mm at 3m lengths.
I’m happy with ducted minisplit, I’d prefer lower running costs. I look forward to the details... I hope we can do outer leaf penetration at 150mm!
I’m happy with roof detail System A: block and beam, vcl, pir then concrete with rubber roof (got the spec from Kemper today).
After consulting with the screeding company, they have high flowing finishing concrete which will do the roof and both internal floors in one visit...lower cost, no comprimise on the finish. I’m planning on all that going in at the end of next week.
I just wanted to confirm my power into the inner room can be drilled through the inner leaf wall below concrete height and brought up through the concrete about 150mm into the room at the front wall...or maybe best nearer the door to the inner room actually as where it is terminated (distribution board in the room) should be accessible..I think SWA (steel wire armoured) cable (3core 6mm2 conductors) should be fine. Shall I run a separate earth cable for grounding or the 3rd core (which is combined with the steel wire armour) be ideal? They’ll be combined at buildings distribution board anyway but at a dedicated earth terminal block as opposed to the RCD protected inner room feed- basically could the rcd mess up the grounding interference?
Thanks very much, spam in a can ey!
The back wall to opening is 240mm (closest we could get to get it in the back wall treatment)
Front wall to opening is 430... they are close to the edge of the room though so might fit in the soffic enclosures...
The image above is correct for location and sizes. I imagine the silencers may be about 130-150kg... we’ll find a way to get them there. I don’t think there’s going to be enough room up there to construct. I’m planning to have the mdf cut to size then we assemble on site.
I should think I can get 24mm at 3m lengths.
I’m happy with ducted minisplit, I’d prefer lower running costs. I look forward to the details... I hope we can do outer leaf penetration at 150mm!
I’m happy with roof detail System A: block and beam, vcl, pir then concrete with rubber roof (got the spec from Kemper today).
After consulting with the screeding company, they have high flowing finishing concrete which will do the roof and both internal floors in one visit...lower cost, no comprimise on the finish. I’m planning on all that going in at the end of next week.
I just wanted to confirm my power into the inner room can be drilled through the inner leaf wall below concrete height and brought up through the concrete about 150mm into the room at the front wall...or maybe best nearer the door to the inner room actually as where it is terminated (distribution board in the room) should be accessible..I think SWA (steel wire armoured) cable (3core 6mm2 conductors) should be fine. Shall I run a separate earth cable for grounding or the 3rd core (which is combined with the steel wire armour) be ideal? They’ll be combined at buildings distribution board anyway but at a dedicated earth terminal block as opposed to the RCD protected inner room feed- basically could the rcd mess up the grounding interference?
- Success in music is being able to make music whatever your situation -
- Soundman2020
- Site Admin
- Posts: 905
- Joined: Thu, 2019-Sep-19, 22:58
- Location: Santiago, Chile
- Contact:
Re: New build small size high isolation project
The back wall to opening is 240mm (closest we could get to get it in the back wall treatment)
Front wall to opening is 430... they are close to the edge of the room though so might fit in the soffic enclosures...
Just triple checking here: Like this?
At both the front and the back we are a bit off in terms of depth into the room. At the front by about 250 mm, at the back by about 200. I like to use the soffits and treatment to hide the HVAC as much as possible, but with the current design things are off by about that much. At the front, it's not such a big deal since the cloud will hide the registers anyway, but at the back they'll be visible.... However, I have something in mind that should work to extend things enough. Still got a few tricks up my sleeve here!
Great! That's good news. If so, then we might actually need to slice a little into the shutters, so the sleeves can fit with a gap... but I'll see if I can come up with another method. But just in case: I assume you have a good power plane that you could get up there, to shave off a few mm if necessary?I should think I can get 24mm at 3m lengths.
OK. Then I would suggest building them down on the floor, but without actually fixing the sleeves in place: just press-fit to make sure they go in fine, then take them out again. Then raise up just the body of the silencer, without the sleeves, and slide it in from the storage room side, and maneuver it into place on top of the inner-ceiling. Insert rubber pads to decouple, then insert the sleeves from below, up through the holes in the ceiling, with abundant truck loads of glue on all surfaces, to get a good solid bond and seal. Then, once the glue has cured, do the backer-rod/flexible caulk thing. That would be the best way of getting them up there. It's going to be a tight fit to be able to maneuver the box into place!we’ll find a way to get them there. I don’t think there’s going to be enough room up there to construct. I’m planning to have the mdf cut to size then we assemble on site.
I’m happy with ducted minisplit, I’d prefer lower running costs. I look forward to the details... I hope we can do outer leaf penetration at 150mm!
There's no need to be crazy accurate on the equipment power consumption list: just estimates of the wattage of the gear you plan to have in the desk (console, rack gear, speakers, etc.) and other gear that musicians or WAG's might bring in for a session. That list of gear will also help me get the desk design right, so you have enough place to fit in all your fancy boxes within easy reach, built into the desk. (Most gear has the power rating listed on the serial number plaque, or if not then in the manual).
Man, you sure are roaring through this construction at high speed! This is one of the fastest projects I've been involved in! Not THE fastest, but getting close...After consulting with the screeding company, they have high flowing finishing concrete which will do the roof and both internal floors in one visit...lower cost, no comprimise on the finish. I’m planning on all that going in at the end of next week.
Right. I'd suggest putting in a sub-panel to the left or right of the doorway, but not directly up against it: leave a small space there. We need to figure out which way you want the door to swing open, so the panel can be on the latch side of the door, not the hinge side. You want to be able to reach the panel without having to fiddle with the door to get to it.I just wanted to confirm my power into the inner room can be drilled through the inner leaf wall below concrete height and brought up through the concrete about 150mm into the room at the front wall...or maybe best nearer the door to the inner room actually as where it is terminated (distribution board in the room) should be accessible..
You also need to check with your electrician about what circuits to put on that panel. I would suggest breakers for the at least five circuits: one for the HVAC system, two for lights, and two for plugs. The reason I suggest two for plugs, is to have all your gear on one circuit, and "other stuff" on the other circuit. "Other stuff" being things like the coffee maker, cell phone chargers, laptops, and other stuff that people might bring into the room: you don't want those on the same circuit as your audio gear. Your electrician might suggest additional circuits, but I'd have at least those five. Also, I'd suggest star-grounding for all the plugs. And do make sure that your building ground is very well done, with low resistance to earth!
Your HVAC is likely going to be something like 1 to 2 kw, probably towards the low end. When you add up all your gear ratings, lights, and the other stuff, that will give you the total load. Your electrician can then tell you what your local code requires.I think SWA (steel wire armoured) cable (3core 6mm2 conductors) should be fine.
Not sure how able is made in the UK, but normally the three conductors should be independent from the armor. Where I live, the armor is a mechanical shield, and should not carry any current. The third conductor is the ground conductor. But once again, go with what your electrician says is required by code. For example, if your electrical code requires that the neutral and ground paths are bonded at the distribution panel, then do that.Shall I run a separate earth cable for grounding or the 3rd core (which is combined with the steel wire armour) be ideal?
Normally RCD's (a.k.a. "GFCI", "Earth Leakage Units", and a few other aliases) don't have an earth connection: they only use the live and neutral conductors. They work by detecting any difference in current flow between those two, and if the difference is above a certain very small threshold, then the device trips the power. The principle is simple: all of the current flowing through the live conductor should then come back through the neutral conductor. If it doesn't all come back, then the missing part is probably flowing through the ground conductor, or through you(!), which is not a good thing either way, so it detects the imbalance and trips. But the device does not use a ground connection, since it only cares about live and neutral. It only needs to know that there's a difference in the current flow between live and neutral: it doesn't care if that difference is going to ground or not: it only knows that there is a difference, and regardless of where that "difference" is going, it's a Really bad Thing so it trips. No reference to ground is needed to do that.They’ll be combined at buildings distribution board anyway but at a dedicated earth terminal block as opposed to the RCD protected inner room feed- basically could the rcd mess up the grounding interference?
So: no, the RCD (GFCI, et. al) should not cause any issues with grounding, since it does not connect to ground. If the RCD trips, that's a good thing.
If your code requires bonding between ground and neutral, that would happen on the upstream side of the RCD, not the downstream side. Good RCD's cut both paths (live and neutral). If the binding was on the downstream side of the RCD, and there was a ground fault upstream, then it is remotely possible that there would still be dangerous voltage present on the neutral conductor, even though the RCD had tripped. Bonding on the upstream side prevents that situation from arising.
But with all things electrical, your electrician is the best one to tell you how things should be done, in accordance with your electrical code.
- Stuart -
-
Purelythemusic
- Full Member
- Posts: 156
- Joined: Sat, 2019-Oct-12, 18:39
- Location: England - Bristol
Re: New build small size high isolation project
Hi Stuart, I’ll reply fully later... to update the accuracy the measurements for opening locations, I gave measurements to the inside face of the wood shutter, the drawing shows the outer face.
Update later! About to go out to seal the walls and get the Rockwool in before removing the scaffold cover during the slight sleet that we have now to get the beams delivered : )
Update later! About to go out to seal the walls and get the Rockwool in before removing the scaffold cover during the slight sleet that we have now to get the beams delivered : )
- Success in music is being able to make music whatever your situation -
- Soundman2020
- Site Admin
- Posts: 905
- Joined: Thu, 2019-Sep-19, 22:58
- Location: Santiago, Chile
- Contact:
Re: New build small size high isolation project
Ahhh! OK. Got it.Purelythemusic wrote: to update the accuracy the measurements for opening locations, I gave measurements to the inside face of the wood shutter, the drawing shows the outer face.
Like this then?
- Stuart -
-
Purelythemusic
- Full Member
- Posts: 156
- Joined: Sat, 2019-Oct-12, 18:39
- Location: England - Bristol
Re: New build small size high isolation project
Lovely, perfect!
Beams were a challenge but on!
Beams were a challenge but on!
- Success in music is being able to make music whatever your situation -
- John Steel
- Active Member
- Posts: 29
- Joined: Sun, 2019-Sep-22, 09:02
- Location: Hastings, East Sussex
- Contact:
Re: New build small size high isolation project
Looking good! I'd love to know how you got the beams up there. ATB John.
PS - (Just noticed the crane on the back of the delivery truck!!!)
PS - (Just noticed the crane on the back of the delivery truck!!!)
“While none of the work we do is very important, it is important that we do a great deal of it.”
https://johnsteel.org/
https://johnsteel.org/
- Soundman2020
- Site Admin
- Posts: 905
- Joined: Thu, 2019-Sep-19, 22:58
- Location: Santiago, Chile
- Contact:
Re: New build small size high isolation project
Great! While you are up there, could you pull out a tape measure and confirm the clearance between the bottom face of the beams and the flat top of the inner-leaf ceiling? That's my final limiting factor on the silencer boxes.... I know what it SHOULD be, but I'd like to confirm...
Also: Did you get all your mineral wool insulation into the cavities between the inner-leaf walls and outer-leaf walls? This will be your last opportunity to do that, before the blocks go on.... I think you already did, and I'm just checking to make sure... That cavity should be as full as you can get it with mineral wool (without compressing it, of course!).
And once again: this progress is amazingly fast! It will slow down a bit for sure, once you get into doing the room interior furniture, treatment, lighting, etc., but so far it's running at the speed of light!
- Stuart -
Also: Did you get all your mineral wool insulation into the cavities between the inner-leaf walls and outer-leaf walls? This will be your last opportunity to do that, before the blocks go on.... I think you already did, and I'm just checking to make sure... That cavity should be as full as you can get it with mineral wool (without compressing it, of course!).
And once again: this progress is amazingly fast! It will slow down a bit for sure, once you get into doing the room interior furniture, treatment, lighting, etc., but so far it's running at the speed of light!
- Stuart -
-
Purelythemusic
- Full Member
- Posts: 156
- Joined: Sat, 2019-Oct-12, 18:39
- Location: England - Bristol
Re: New build small size high isolation project
John Steel wrote:Looking good! I'd love to know how you got the beams up there. ATB John.
PS - (Just noticed the crane on the back of the delivery truck!!!)
Ha, yea not super visible : ) I’ve been talking to the drivers about the job for a while, then when it came to order the beam sizes, I spoke to the office folk who said that the drivers won’t do it... I offered to pay extra, sign wavers... eventually they conceded to allow the driver to decide. He was obliging, especially as it was raining and 3 degrees! Mind you so was the workforce.
- Success in music is being able to make music whatever your situation -
-
Purelythemusic
- Full Member
- Posts: 156
- Joined: Sat, 2019-Oct-12, 18:39
- Location: England - Bristol
Re: New build small size high isolation project
Thanks Stuart!
Yep we got the inside face of the outer wall coated in SBR and cement slurry to seal, then put 275mm rock wool into the back and side cavity and 225mm into the front wall cavity right up to the underside of the beams.
Yes I don’t know why I thought I’d ask about the RCD’s, only that I like to triple check things.
In the UK, the SWA shield is combined with the earth in case of cable severage, the likelihood is that the current in the other two conductors would be more inclined to go to earth through the armour which would be severed. I’m designing the circuits so as many tips as to the layout the better. The regulations and calculations I can do so no problems there. Of course the electrician will be testing and certifying the new circuits.
I’ll take that measurement tomorrow.
We’re planning to coat each block in sbr cement slurry to seal the underside when installing the roof blocks...better than going underneath!..although some time will be soent there, not on your back painting slurry on.
Yep we got the inside face of the outer wall coated in SBR and cement slurry to seal, then put 275mm rock wool into the back and side cavity and 225mm into the front wall cavity right up to the underside of the beams.
Yes I don’t know why I thought I’d ask about the RCD’s, only that I like to triple check things.
In the UK, the SWA shield is combined with the earth in case of cable severage, the likelihood is that the current in the other two conductors would be more inclined to go to earth through the armour which would be severed. I’m designing the circuits so as many tips as to the layout the better. The regulations and calculations I can do so no problems there. Of course the electrician will be testing and certifying the new circuits.
I’ll take that measurement tomorrow.
We’re planning to coat each block in sbr cement slurry to seal the underside when installing the roof blocks...better than going underneath!..although some time will be soent there, not on your back painting slurry on.
- Success in music is being able to make music whatever your situation -
-
Purelythemusic
- Full Member
- Posts: 156
- Joined: Sat, 2019-Oct-12, 18:39
- Location: England - Bristol
Re: New build small size high isolation project
These are the shutter sleeves from below so you can see the possible machining. I have a power plane but it wouln’t get into all the corners... I could fabricate something that could create an internal slope in the sleeves but would reduce their area...
- Success in music is being able to make music whatever your situation -
-
- Similar Topics
- Statistics
- Last post
-
-
SSL Desk Build Attachment(s)
by eightamrock » Tue, 2024-Dec-10, 12:37 » in Recording Studio Furniture -
Replies: 2
Views: 36023 -
by Starlight
View the latest post
Wed, 2024-Dec-11, 06:24
-
-
-
Replies: 5
Views: 57816 -
by gullfo
View the latest post
Tue, 2025-Apr-15, 17:55
-
-
New build with light gauge steel framework Attachment(s)
by seaweednylon » Thu, 2025-Mar-20, 06:38 » in RECORDING STUDIO CONSTRUCTION -
Replies: 3
Views: 10770 -
by gullfo
View the latest post
Thu, 2025-Mar-27, 12:20
-
Who is online
Users browsing this forum: No registered users and 4 guests