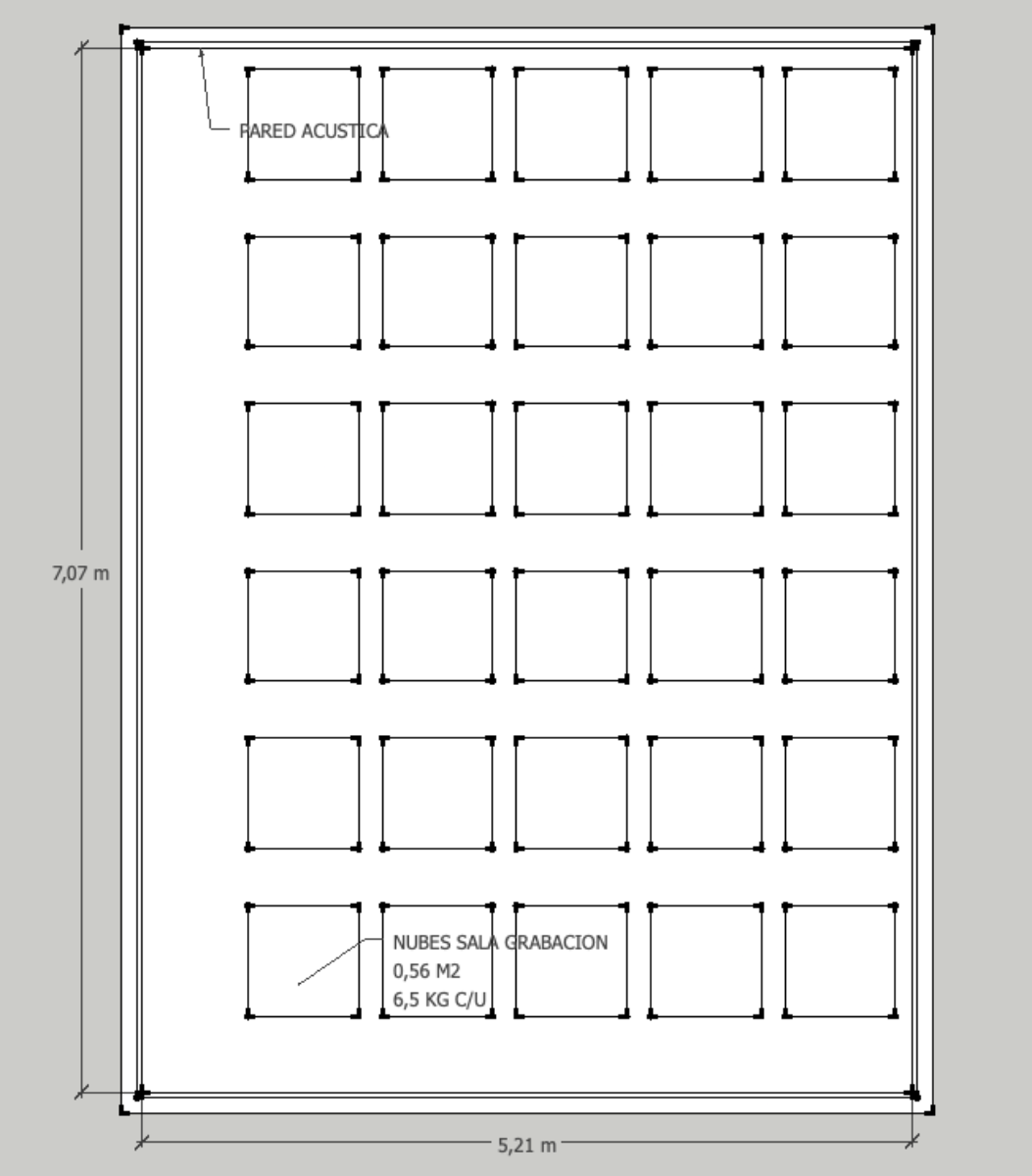
About the cloud, maybe I could make a smaller one, hard back, which will take care of redirecting reflections tough back wall, and treat the rest of the ceiling with a comercial acoustic ceiling, like the one in Studio 3, and fluffy insulation above it, in order to reach our RT60 goal.
The cloud in Studio 3 is done in several sections, and only some of them are hard-backed. The "wing" modules out to the sides are open backed:
You could do something similar. In fact, there's probably more "hard back" in Studio 3 than is really necessary... but we did go all-out there, to get it as good as it could be.
Also, the drop-ceiling you see in the rear half of the room there is only part of the story: there's more above that, that isn't visible in the photos...
Yes, that really is an insane amount of insulation up there!

Those really are full rolls of pink fluffy insulation up there... many! We lost count, in the end. But it was a simple and relatively inexpensive way to do it, because the studio owner is also involved in the construction business, and could get good prices for that. And as you can see from the results: it works!

Great! That will be then. What materials can we get here in Latin America in order to replace Homasote for the hangers?
There's a very similar product called "Sundeala", that you might be able to get there. Not sure, but here's their website in the UK:
https://sundeala.co.uk/ There's also a product by Knauf called "Heradesign" that should work. What you are looking for is the type of material used to make bulletin boards, also called message boards, pin boards: the things you used to see in schools, offices, malls, clubs, and places like that where you could pin up papers with messages, exam results, posters, advertising, etc. using thumb tacks. Also used as a backing for dart boards, and other similar applications. It is soft, not very rigid, and lower density than MDF, OSB, pywood, etc..
And about de Leanfuser, I like it very much. I was reading about it in Tim's website and wanted to download the instructions for building it, but I couldn't. It seems to be a mailing list problem, or something like that. Anyway, I figure out how to make them reading a post in GS that Tim made some time ago, so it's already designed and waiting to be make.
Great! There's some improvements I made to Tim's original design, and I created a SketchUp tool that can generate the entire device automatically, based o a few parameters, so there's an alternative for you, if you are interested!
What do you think about a limp membrane trap in the front wall, under the window? There is some room there, but I think I will make one only after measurements and if it's really necessary for taming the axial length mode.
You could do that too, yes. You normally get the best results from rear wall treatment, but basically any place you have for bass trapping is a good place!
By now, our idea was running some pink noise and music program inside the studio, at 100db@1 m. and then take measurements outside, in some locations, and in different hours with variations of background noise. Also taking some background noise samples, to figure out how quiet or noisy is inside and outside.
Pink noise is great for testing and tuning rooms and treatment, but not so great for testing isolation: For two main reasons: 1) The spectrum of pink noise is very similar to the spectrum of plain old ambient noise, so it's hard to tell the difference between them in measurements. 2) Pink noise is constant, and does not vary: it has no percussive sounds, nor transients: in other words, it is too smooth and doesn't represent typical music. The best way of testing isolation for music is with music!

In other words, set up a good full-range speaker in the room, and play typical contemporary rock music through it, choosing songs that has a lot of percussive sounds (drums), intermittence (brief pauses in the song), transients, etc. That's a lot easier to detect at low levels outside. In fact, if you think of it, those are the sounds that transmit well: when you walk past a night club, disco, or party, what you hear most loudly is the kick, snare and bass, not so mucyh the guitars, keyboards and singers. As you walk away, you can hear the kick and snare still going strong log after the rest is no longer audible. Those are the annoying sounds that neighbors will complain about, because they travel so well, so that's what you should test with.
That's for testing "How loud", but you also, you need to test for "How quiet". You need some measurements of ordinary ambient background sound in the neighborhood, at all times of day, so you can see what the typical levels are, especially at night. That's how quiet you need to be. And you also need to do some measurements INSIDE the building, as it is right now, to see what the typical ambient levels are like in there.
Basically, measure in many places inside and out, under all scenarios, to get a good picture of the current isolation levels, and also of the background levels. Based on that, you can figure out how much more isolation you need.
I have to do the math, in order to see if is there enough cavity depth for a low resonant frequency, and probably not... So there will be a frequency (or a range) were sound will pass trough like hot knife in butter, right?
Right! That's the point of MSM isolation systems: At the resonant frequency, there is very little isolation at all, and in fact there can be amplification of those sounds. But starting at 1.414 times the resonant frequency, you get isolation, and for all higher frequencies, rising at a rate of around 15 dB/octave (18 db/octave in theory: more like 15 in real life), as opposed to just 6 dB / octave for single-leaf wall. That's the beauty of MSM... which is why studios are normally built using two-leaf MSM isolation. You get MUCH better isolation than for single-leaf. But you do have to design it so that the resonant frequency is at least an octave lower than the lowest frequency you need to isolate. Preferably 2 octaves lower.
Do I have this issue with a single leaf too? Is there a resonant frequency if there is not MSM?
The issue with single leaf, is "Mass Law". You only get an increase of 6 dB per octave (in theory: more like 5 in real life), vs. the 18 (or 15) of a two-leaf wall. Thus, you need huge amounts of mass to get good isolation with only a singe leaf. You can do that with thick concrete or brick, sure, but that only applies to walls.... trying to make a door or window massive enough, is a major challenge... and major expense!
I'll give that a serious thought. That's absolutely right. My fear is making all the inner shell, caulking and that, and end up with similar results as we had before doing all that.
That would only happen if you did a really, REALLY terrible job of building the inner leaf!
The math doesn't lie. 18 db/octave is way, way better than 6 db/octave. And also, you get similar huge increase in isolation each tie you double the mass of an MSM wall... but only a 6 dB increase in mass in the case of a single-leaf wall, for each mass doubling. Hence, you need insanely thing glass and insanely massive doors for a single-leaf studio with high isolation.
- Stuart -